Emplacement des prises dans la chambre
Emménager dans un appartement doté d'un câblage électrique standard implique souvent l'achat de nombreuses rallonges et tés. La raison est extrêmement simple : il n’existe pas de formule pour un placement universel des prises. Il y en a toujours peu. Ils finissent constamment au mauvais endroit. Mais les rallonges n'ajoutent pas d'esthétique à la conception et leur utilisation comporte de nombreux risques. Mais comment se débarrasser des fils disgracieux peut être vu en utilisant l'exemple d'une chambre.
Le contenu de l'article
Emplacement des prises dans la chambre
La chambre à coucher a depuis longtemps cessé d'être une pièce dans laquelle sont placés uniquement un lit et une table de chevet. Même avant l'avènement de l'électricité, des coiffeuses et une armoire y ont été installées - après tout, les vraies dames et messieurs ne devraient pas quitter la chambre uniquement en pyjama. Et dans un appartement moderne, cette pièce peut aussi faire office de bureau. Ou un espace de loisirs à part entière, impossible à imaginer sans appareils multimédia. Et tout cela est éclairé ou alimenté par l’électricité.
Ce qu'il faut considérer lors du choix d'un emplacement
Lorsque la question de la création d'un câblage électrique optimal se pose lors de la rénovation d'un appartement de longue durée, elle est un peu plus facile à résoudre - les propriétaires savent déjà ce qui se trouve et où. C'est plus difficile pour les nouveaux colons. Ils doivent décider du mobilier de la chambre. Mais c'est de là qu'il faut partir.

Afin de ne pas souffrir plus tard d'une prise « mal installée », vous devez :
- Armez-vous d'un ruban à mesurer, d'un crayon et de quelques feuilles de papier.
- Prenez les mesures des meubles qui seront placés dans la chambre. Découvrez où l'installer.
- Apprenez-en davantage sur le génie électrique. Il est important de prendre en compte le nombre et l'emplacement de tous les appareils qui se trouveront dans la chambre - d'une lampe de table au fer fixé à une planche à repasser intégrée à l'armoire.
Les résultats de toutes les mesures, ainsi qu'une liste des meubles équipés d'appareils consommateurs d'électricité, doivent être notés sur une seule feuille. Sur le second, il convient d'esquisser le futur aménagement de la chambre. Après cela, vous pouvez commencer à réfléchir au câblage électrique.
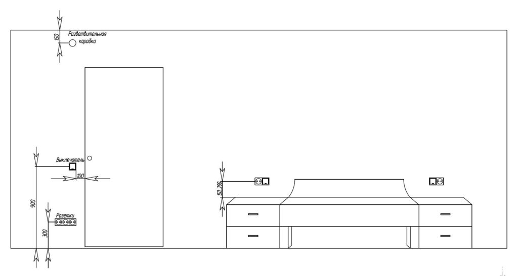
La position la plus pratique et la plus pratique des prises dans la chambre
Tout d'abord, une connexion « permanente » est réfléchie - où et comment seront placés les appareils rarement déconnectés du réseau : lampes de table, éclairage de coiffeuse, TV, ordinateur et équipements similaires. Chacun de ces appareils dispose d'une prise séparée qui peut être masquée.

Vient ensuite la planification d’une connexion « temporaire » : téléphone portable, ordinateur portable, sèche-cheveux, fer à repasser, etc. Les prises sont conçues pour eux dans les lieux d'utilisation les plus fréquents. Ces connecteurs doivent être à un niveau pratique pour les propriétaires.
La dernière étape consiste à combiner les résultats des deux précédentes. En prenant l’espace de chevet comme exemple, cela ressemble à ceci :
- La table de chevet sur laquelle repose le lampadaire peut cacher la douille qui lui est destinée.
- Le propriétaire aime « s'asseoir » en ligne sans sortir de sous la couverture, ce qui signifie qu'il devrait y avoir un point de connexion pour le chargeur à la tête du lit. Vous ne pouvez pas le cacher derrière des meubles.
- Résultat : il vous faut une double prise avec un accès facile. Il est placé soit au-dessus du plateau d'une table de chevet près du lit, soit à un niveau confortable dans l'espace entre les meubles espacés.
Conseils pratiques
Une prise ne signifie pas toujours une alimentation en 220 V. Si vous envisagez d'utiliser des gadgets, vous pouvez utiliser un port USB intégré au cadre habituel pour les recharger.

Par « caché », nous entendons les points de connexion qui sont cachés à la vue. Pour le matériel informatique, il s'agit de connecteurs situés à une hauteur de 15 à 35 cm du sol. Pour les téléviseurs et les appareils multimédias associés - environ 130 (pour que la prise soit cachée derrière eux).
Pour une utilisation périodique, un raccordement au réseau électrique est prévu à une hauteur de 90-100 cm.Cette règle fonctionne même si la prise est conçue sans raccordement au meuble.
Et surtout, lors de la planification de votre configuration électrique, vous devez prendre en compte la probabilité que toutes les prises soient utilisées en même temps. Pour cette raison, il ne faut pas essayer de se contenter d’un nombre minimum d’entre eux. Sinon, une situation peut survenir lorsque vous aurez à nouveau besoin d'une rallonge ou d'un té.

