Fabriquer un meuble évier en bois massif de vos propres mains
Je comprends vraiment ceux qui ne recherchent pas la facilité et fabriquent leurs propres meubles. Le même meuble sous l'évier - vous pouvez aller l'acheter dans un magasin, ou vous pouvez choisir les matériaux que vous aimez, imaginer votre propre design, l'adapter parfaitement aux dimensions de la pièce et, en général, mettre votre âme dans ça. Alors ne tardons pas, commençons à créer un chef-d'œuvre de mobilier !
Le contenu de l'article
Préparer les outils et dessiner un meuble évier
Je vais tout de suite faire une note de bas de page très importante.
Attention! Il faut acheter un évier AVANT de commencer les travaux, pas après !
Cela semble drôle, mais vous ne pouvez même pas imaginer combien de maîtres potentiels ont commis des erreurs à ce sujet et combien d'armoires ont dû être refaites après l'achat de l'évier.
Donc, tout d'abord, vous devez commencer par les mesures :
- espace libre autour de l'évier;
- sa taille;
- la hauteur de son emplacement ;
- communications, à savoir : la longueur du tronçon avec les tuyaux, leur diamètre et la distance du mur à leur extrémité.
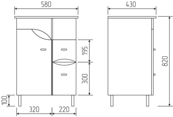
Fait? Plus loin. Par expérience, je peux dire qu'il est préférable de partir de tailles standards, puis de les ajuster à vos mesures (et à vos goûts, bien sûr) :
- hauteur 82 cm ;
- profondeur 43 cm ;
- largeur 58 cm.
Le dessin devrait ressembler à ceci :
Préparons maintenant tous les outils dont nous avons besoin pour créer le cabinet de nos rêves. Ce:
- marteau;
- percer;
- Tournevis;
- scie sauteuse;
- scie à métaux;
- pinces;
- tournevis;
- papier de verre;
- quelque chose à mesurer, un ruban à mesurer fera l'affaire ;
- papier et crayon;
- Rectifieuse.
Tout est? Si vous n’avez pas quelque chose, vous pouvez courir au magasin dès maintenant et en acheter davantage.
Référence. Si vous souhaitez utiliser du matériel supplémentaire, vous aurez besoin en plus des outils appropriés.
Prêt? Commençons la Sainte-Cène.
Fabrication et assemblage d'un meuble en bois massif
Chacun d'entre eux se compose d'une base de cadre, d'un plateau, de parties latérales et d'éléments supplémentaires - portes, étagères, tiroirs, auvents, etc. Certains d’entre eux peuvent avoir un fond et des pattes qui y sont attachés. Pour la charpente, des poutres en bois de votre choix conviennent. Le dessus peut être n'importe quoi : plastique, plaques de plâtre, verre, bois, etc. Le contreplaqué ordinaire convient pour les côtés et le fond. Des éléments supplémentaires peuvent être fabriqués à partir de tous les matériaux de votre choix.
Tous les motifs sont d'abord marqués sur papier, puis transférés sur la surface requise et découpés à l'aide d'une scie sauteuse.
Important! Lorsqu'ils fabriquent une armoire avec des portes, les gens oublient souvent la petite partie supérieure au-dessus d'elles. Il ne remplit aucune fonction autre que décorative, mais sans lui vous obtiendrez un résultat moche avec un trou béant. Ne procédez pas de cette façon.
Le processus d'assemblage commence par la base du cadre. Ensuite, toutes les pièces sont poncées et, si nécessaire, recouvertes de produits spéciaux pour les protéger de l'humidité.
Les parois latérales sont fixées au cadre (des vis et de la colle sont utilisées pour cela). Pour plus de solidité, je recommande fortement de renforcer les connexions avec des coins en acier ou en aluminium.
Maintenant la surface supérieure. Même si vous avez tout vérifié plusieurs fois auparavant : placez l'évier dans le trou pour être sûr à 100 % que toutes les dimensions sont correctes. Il n'est pas encore nécessaire de l'attacher - nous le ferons plus tard, pour l'instant nous nous assurons simplement que tout s'adapte.
Maintenant le bas. Certaines personnes le fixent en dernier lieu, mais c'est plus pratique lorsque le meuble est couché sur le côté, et dans ce cas, les portes qui claquent et les tiroirs coulissants peuvent gêner. C'est pourquoi je les laisse pour la fin.
Installer une armoire sous l'évier de vos propres mains
Voilà, notre belle est prête, il ne reste plus qu'à la raccorder au lavabo. Il est important qu'à cette étape, l'ensemble de l'évier soit complètement assemblé : avec robinets, poignées, conduites d'eau, etc.
Le cabinet est placé à l'endroit où il effectuera son long et fidèle service. Si vous possédez un modèle suspendu, c'est le moment de le fixer au mur. N'oubliez pas que vous devrez supporter le poids non seulement du meuble lui-même, mais également de l'évier, les fixations doivent donc être aussi fiables que possible.
Du silicone ou du mastic est appliqué sur tout le bord de l'évier, après quoi il est installé dans le trou. Il n'est pas nécessaire d'économiser de l'argent ici. Si vous en faites trop, vous pouvez toujours supprimer l'excédent. Mais la « pénurie » n’aura qu’à être refaite.
Référence. Il existe également des modèles qui se fixent depuis l'intérieur du meuble à l'aide d'un système de fixation spécial, de sorte qu'il n'y ait pas d'éléments convexes sur la surface. Mais pour les installer, mieux vaut s’adresser à un spécialiste, car le risque d’erreur est trop grand.
Après cela, il ne reste plus qu'à raccorder l'évier à l'alimentation en eau. Si vous souhaitez ajouter des éléments décoratifs au meuble (motifs sculptés, peinture, dorure…), c'est le moment de vous lancer. Vous pouvez également y coller du carrelage ou du film autocollant.
Ainsi, vous recevrez dans votre salle de bain ou votre cuisine un meuble unique, créé de vos propres mains, que vous pourrez montrer à vos invités, léguer à vos descendants ou admirer dans un splendide isolement.

