Garde-robe de bricolage
Si vous avez besoin de profiter de l'espace libre dans la pièce, vous pouvez installer une armoire. Cette conception est devenue populaire en raison de sa fonctionnalité.
Le contenu de l'article
Comment créer une garde-robe de vos propres mains
L'installation d'une armoire commence par la planification. Il est nécessaire de dimensionner la pièce. L'étape suivante consiste à créer le cadre. Puis le remplissage intérieur (barres, étagères et tiroirs). Ensuite, les portes sont créées. La dernière étape consiste à créer la façade nécessaire pour que la structure s'intègre dans la pièce.
Préparation des outils et du matériel
L'armoire peut être réalisée à partir de l'un des matériaux suivants :
- Doublure et bois. Ils sont durables, fiables et respectueux de l’environnement. Mais cette option n’est toujours pas la meilleure. Si l'armoire est installée dans une niche, une accumulation constante d'humidité entraînera des dommages au matériau.
- Cloison sèche. Ce matériau est facile à traiter. Mais il ne peut pas servir de support. Le cadre doit être en métal.
- Stratifié MDF ou panneaux de fibres. À l'heure actuelle, ces matériaux sont considérés comme les meilleurs. Ils ont su conserver tous les avantages du bois (résistance et durabilité). Ils résistent également à une humidité élevée.
- Panneaux de particules. L'avantage est le bas prix du matériel. Mais il ne tient pas bien les fixations et n'est pas respectueux de l'environnement.
Pour travailler, vous avez besoin des outils suivants :
- Tournevis.
- Scie à métaux.
- Roulette.
- Niveau.
- Couteau.
- Agrafes.
- Fer à repasser.
- Carré.
Attention! Dans certains cas, l'assemblage peut nécessiter d'autres outils.

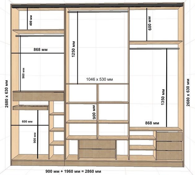
Comment prendre des mesures correctement
A ce stade, il est nécessaire de faire des dessins. Mais c’est encore mieux de réaliser un modèle visuel.
Vous devez d’abord mesurer la pièce. Si une structure montée est prévue, il est nécessaire de mesurer les niches ou le mur. Après cela, nous procédons aux mesures des compartiments internes.
La création d'une esquisse est l'étape la plus importante et la plus difficile de l'assemblage. La plupart des erreurs se produisent ici, car vous devez mesurer le plus précisément possible la pièce et les dimensions de la future armoire. Toute erreur dans cette étape peut avoir pour conséquence que la structure créée ne s'adapte pas à l'emplacement prévu ou soit trop petite.
Attention! Si vous assemblez le meuble au sol, vous devez prendre en compte 10 cm supplémentaires, sinon il ne sera pas possible de l'installer. C'est la distance entre le flux et la charpente de la pièce.
Il existe de nombreux projets prêts à l'emploi que l'on peut trouver sur Internet. Selon eux, les valeurs moyennes des armoires sont :
- Hauteur 2,5 m.
- Profondeur 50cm.
- Largeur 1,5m.
La taille du meuble dépendra de la façon dont il est utilisé. Si vous avez besoin d’une structure pour ranger de petits objets ménagers, une petite armoire fera l’affaire. Si le placard contient des vêtements et d'autres objets (éventuellement des appareils électroménagers), une structure plus grande est nécessaire. Selon cela, des calculs sont effectués.
Une fois que nous avons déterminé la profondeur, la hauteur et la largeur du meuble, nous devons mesurer les portes. Tout dépend du calcul de la largeur du meuble. Autrement dit, si la largeur est de 1,5 mètre et l'épaisseur du matériau est de 15 cm, vous devez alors suivre cette formule 1500 - 2 * 15 = 1470 - la largeur des portes de l'armoire. La hauteur des portes doit également être mesurée, mais ici la base est prise en compte.
Garde-robe toi-même : instructions étape par étape
Après avoir réalisé tous les croquis et acheté les matériaux, nous devons commencer à assembler le cadre. Tout d'abord, la base est assemblée. Le bas doit être marqué de manière à ce qu'il y ait une charge uniforme sur tous les pieds de l'armoire. Pour monter la base, des fixations appelées chevilles sont utilisées. Pour que la structure soit stable, la base doit affleurer le mur.
L'étape suivante consiste à installer les panneaux latéraux. Les extrémités devront être poncées au préalable pour garantir qu'elles adhèrent au mur du fond. Le plus important est de faire attention à la fiabilité de la garde-robe. Pour vous assurer que les parois latérales sont de niveau, utilisez un niveau.
Vous devez maintenant réaliser le remplissage intérieur du meuble. Nous installons des tringles, des étagères et des tiroirs. Note. Lors du processus d'assemblage des boîtes, vous devez d'abord installer les mécanismes de guidage, puis les mécanismes de réponse. Les façades seront les dernières.
La dernière étape consiste à installer la porte. Vous pouvez acheter une planche de meuble prête à l'emploi ou la découper vous-même dans une planche de bois. L'installation des portes est une étape importante, car il faut prendre en compte le poids et les dimensions des portes. Si vous les rendez gros et lourds, le meuble sera difficile à utiliser.
Créer une garde-robe de vos propres mains est assez simple. Il faut porter une attention particulière au choix du matériau et à la réalisation d’un croquis.

