La meilleure disposition des prises et des interrupteurs dans la cuisine
Combien d’interrupteurs et de prises électriques doit-il y avoir dans la cuisine ? À quelle hauteur du sol faut-il les placer ? Voyons à quoi il faut faire attention lors de la conception du câblage électrique.
Le contenu de l'article
Règles générales
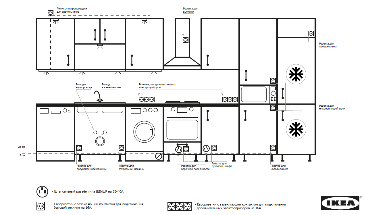
Avant de commencer à planifier, vous devez comprendre combien d'appareils électroménagers vous comptez utiliser : chacun d'eux aura besoin de sa propre prise. Si les appareils sont intégrés, il est recommandé d'installer des alimentations électriques derrière les murs des armoires adjacentes et pour y accéder, vous devrez percer des trous. La hauteur recommandée est de 30 à 60 cm du sol.

Les prises ne doivent pas être placées directement derrière des appareils électriques encastrables !
Pour la hotte, la source d'alimentation est montée à 50 mm du haut des armoires. Il est important qu'il ne soit pas obstrué par la ventilation. Il doit y avoir plus de 20 cm entre la partie médiane de la hotte et la prise.
Commutateurs et alimentations pour besoins supplémentaires
Il est préférable de déplacer l'interrupteur commun de la cuisine dans le couloir. Si cela n’est pas possible, il se situe à l’entrée.
Les prises pour l'aspirateur sont placées plus près du sol, à une distance de 30 cm.

Les interrupteurs sont montés à 10 cm du montant de la porte, à une hauteur de 80 cm.

Localisation des alimentations depuis les zones humides
Il convient de noter tout de suite que vous devez choisir des interrupteurs et des prises pour la cuisine avec des surfaces brillantes : la saleté y est mieux éliminée.Dans ce cas, il est recommandé d'installer des prises avec une base diélectrique en céramique.
Pour installer une source d'alimentation, vous devez vous éloigner d'au moins un demi-mètre du mélangeur. Et vous ne pouvez pas non plus le monter près du feu.

Exemples des meilleurs schémas
La première option ressemble à ceci :
- La prise micro-ondes se trouve sur le mur, sur le côté droit du micro-ondes, derrière l'évidement en haut, ainsi qu'une autre en bas. De cette façon, le cordon ne sera pas visible.
- Pour la capuche, elle est placée plus haut et à droite. Le point supérieur se situe juste au-dessus du bord des armoires supérieures ou au ras de celles-ci.
- Il est conseillé de placer un interrupteur pour lampes au-dessus du plan de travail.
- Pour une bouilloire, un multicuiseur et un grille-pain, 2 à 4 prises sont installées.
- Pour un réfrigérateur, la source d'alimentation est placée en bas, près du compresseur, pour une machine à laver - à droite ou à gauche.
La deuxième option ressemble à ceci :
- pour le micro-ondes, les prises sont situées en dessous ou au dessus de la même manière ;
- la source d'alimentation des lampes de la zone de travail est située en haut ;
- L'alimentation électrique du réfrigérateur est située au-dessus, mais dans ce cas, vous aurez probablement besoin d'une rallonge (une autre de rechange peut être placée en dessous).

Pour les machines à laver, il est préférable de prendre des prises avec un capot de protection.
Les sources d’alimentation pour la plaque de cuisson et le four doivent être situées au sous-sol de la cuisine. Pour un lave-vaisselle, il est préférable de les placer dans le socle à gauche ou à droite de celui-ci. Pour le hachoir - dans le bloc situé dans la partie centrale de la cuisine.
Si un éclairage d'armoire est nécessaire ou si un téléviseur est installé, ils auront également besoin d'être alimentés par le réseau. Comme vous pouvez le constater, tout est simple. L'essentiel est la sécurité et que les cordons soient peu visibles. C'est sur cela que vous devriez vous concentrer.


