Chaudière à pyrolyse DIY
La pyrolyse est le nom donné au processus par lequel le combustible brûle lentement. Elle s'accompagne de la formation d'un milieu gazeux.
Ce processus est à la base du fonctionnement des équipements de chaudière, dont l'efficacité peut être comparable à celle du gaz.
Il n'est pas nécessaire d'acheter une chaudière à pyrolyse : vous pouvez la fabriquer vous-même. Ci-dessous, nous vous expliquerons plus en détail comment procéder.
Le contenu de l'article
L'originalité et la particularité du fonctionnement des chaudières à pyrolyse
Avantages des chaudières

Les chaudières basées sur la pyrolyse présentent un certain nombre des avantages suivants.
- Lorsque le carburant brûle, il n'y a pas de dégagement de suie, de suie et d'autres déchets de combustion. Les fours à pyrolyse sont l’un des types d’équipement de four les plus respectueux de l’environnement.
- N'importe quel combustible sec peut être utilisé comme combustible, par exemple les déchets de couture. Un combustible de bonne qualité peut assurer le fonctionnement continu d'une chaudière basée sur un four à pyrolyse pendant 12 heures. Autrement dit, le chargement du bois de chauffage peut être effectué deux fois par jour.
- L'utilisation d'un tel poêle vous permet de réduire les coûts de chauffage des services publics de 50 à 60 % par an.L'utilisation de la technologie de pyrolyse permet d'automatiser les processus de contrôle du four, ce qui augmente ainsi la sécurité de l'appareil dans son ensemble.
Défauts
Parallèlement, les chaudières de ce type présentent également certains inconvénients.
Pour acheter une chaudière finie et la mettre en service, vous devrez investir un certain montant, mais il convient également de noter que l'efficacité de cet appareil sera visible presque immédiatement.
Caractéristiques de fonctionnement

L'une des difficultés de fonctionnement d'un tel dispositif tient au fait que le combustible qui sera utilisé doit avoir une teneur en humidité de l'ordre de 20 %. Sinon, la combustion s'arrêtera. Autrement dit, le carburant doit subir une procédure de séchage. Cette opération peut ajouter de la complexité à l'appareil et réduire ses performances.
Dans certains cas, une pompe alimentée à l'électricité est utilisée pour pomper l'air et le fonctionnement de l'équipement devient dépendant de l'électricité.
Ces informations doivent être gardées à l’esprit lorsque l’on commence à fabriquer sa propre chaudière.
Matériaux et outils pour la fabrication

Avant de commencer à créer un four de ce type, vous devez rassembler une gamme assez large d'outils et de matériaux.
Vous trouverez ci-dessous un exemple de liste.
- Perceuse électrique.
- Machine de soudage. L'expérience suggère qu'il est conseillé d'utiliser un modèle à courant continu.
- Électrodes pour travaux de soudage.
- Meuleuse d'angle.
- Meules de coupe et de meulage d'un diamètre de 125 mm. Si vous coupez vous-même la tôle pour fabriquer le poêle, vous aurez besoin d'une molette d'un diamètre de 230 mm.
Le matériel nécessaire à la fabrication du four est généralement indiqué dans le cahier des charges inclus dans l'ensemble de la documentation de travail.Mais dans tous les cas, une tôle d'une épaisseur de 4 mm, des tubes profilés d'une épaisseur de paroi de 2 mm et une certaine quantité de bandes métalliques de différentes largeurs et épaisseurs seront demandées. En plus du métal à partir duquel le four sera finalement construit, vous aurez besoin d'un ventilateur et d'un capteur de température.
Important! Une chaudière à pyrolyse diffère des autres équipements en ce qu'elle brûle non seulement du combustible, mais également le gaz dégagé lors de sa combustion.
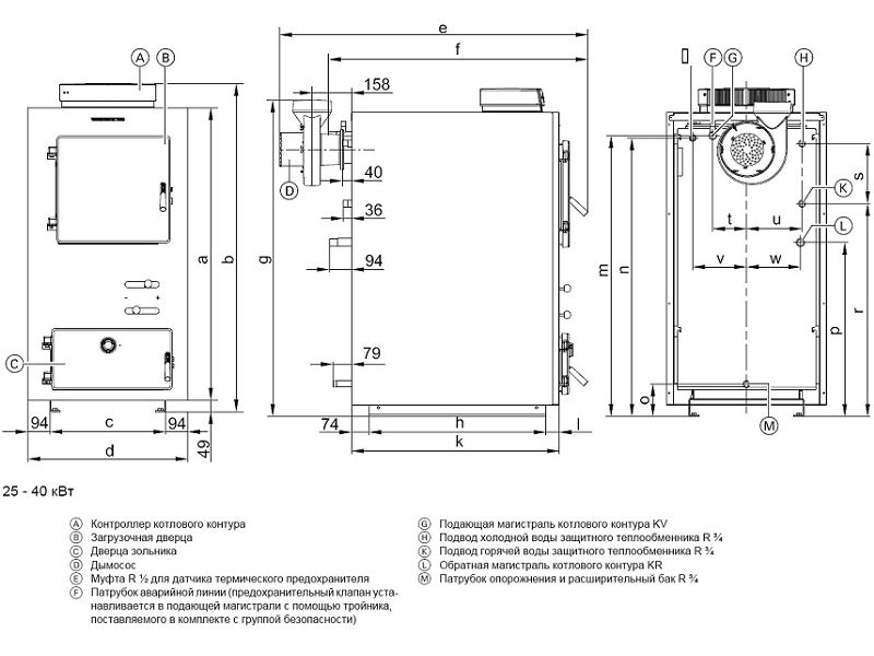
Schéma et dessins d'une chaudière à pyrolyse
Pour mieux comprendre le principe de fonctionnement de cet équipement, il est judicieux de comprendre le fonctionnement d'une telle chaudière et de démonter son schéma électrique.

Le four de pyrolyse se compose des pièces suivantes.
- Chambres de gazéification.
- Postcombustion.
- Systèmes d'alimentation en air (primaire, secondaire).
- Chemise d'eau.
- Grille.
De plus, la conception d'une chaudière à pyrolyse comprend des tuyaux d'alimentation en eau, une chambre de combustion, un équipement de contrôle, un ventilateur et quelques autres composants.
Une chaudière à pyrolyse est un dispositif technique assez complexe. Lorsque vous le réalisez vous-même, vous devez strictement respecter toutes les exigences de la documentation de travail.
Nous vous proposons un dessin de la chaudière, qui sera utile lors de la fabrication.

Le schéma suivant vous aidera à comprendre la structure interne de la chaudière.

En règle générale, une chaudière d'une capacité de 40 kW suffit pour chauffer une maison de campagne. Si cet indicateur doit être ajusté, vous pouvez modifier certains paramètres du four.
Afin de fabriquer une chaudière, il est nécessaire de préparer ses principaux éléments structurels.
Instructions pas à pas pour fabriquer une chaudière à pyrolyse
Cadre

La tôle d'acier est utilisée pour fabriquer le corps d'une chaudière à combustion longue.
- A l'aide d'une meuleuse d'angle, les pièces sont préparées conformément aux dessins reçus.
- Des emplacements sont préparés dans les murs pour les portes du cendrier et pour le chargement du combustible. L'essentiel lors de l'exécution des travaux est le respect de toutes les exigences de la documentation de travail.
- Une machine à souder est utilisée pour relier les pièces en tôle.
- Après réception des pièces finies, les coutures résultantes doivent être nettoyées du tartre. Pour ce faire, utilisez une petite meuleuse d'angle avec une meule installée.
- Après cela, les tuyaux sont soudés de manière à ce qu'il n'y ait aucun espace entre les joints.
- Un échangeur de chaleur de protection doit être installé sur la paroi arrière de la chaudière.
- Après avoir testé l'étanchéité, une paroi arrière en acier résistant à la chaleur peut être installée.
- A l'étape suivante de la fabrication du four, il est nécessaire d'installer une cloison qui séparera les chambres de gazéification et de combustion du gaz en réalisant une grille en fonte.
- Un conduit d'air ainsi qu'un registre sont installés au-dessus de la chambre de gazéification. Un conduit d'air est installé au fond de la chambre. Après cela, la chambre de combustion est immédiatement finie avec des briques en argile réfractaire (résistantes à la chaleur).
- La finition se fait sur le fond et les côtés.
Des portes

Pour les portes de la chaudière, vous devrez acheter une tôle d'acier résistant à la chaleur.
Pour augmenter la rigidité, ils sont renforcés par une cornière en acier, la soudant à l'intérieur.
Assemblée
Une telle chaudière peut être installée dans des locaux non résidentiels.
L'assemblage s'effectue dans l'ordre suivant.
- Fixez la cheminée.
- Après cela, des tuyaux sont fixés à la chaudière, à travers lesquels le fluide de travail du circuit de chauffage sera transporté.
- L'installation est considérée comme terminée après l'installation de la pompe à fumée.
Conseils pour fabriquer une chaudière à pyrolyse

- Lors de la fabrication de cet équipement, il est nécessaire de respecter strictement les exigences des dessins d'exécution et le travail lui-même doit être effectué à l'aide d'outils de haute qualité.
- Étant donné qu'une rectifieuse sera utilisée pendant les travaux, lors du traitement des soudures, il est nécessaire d'utiliser un équipement de protection individuelle : lunettes, gants, respirateur.
- Tous les travaux doivent être effectués dans le respect des exigences de sécurité et de protection du travail.
- Une fois les travaux terminés, il est logique d'appliquer un revêtement protecteur sur la surface du four fini pour protéger le four de la corrosion.
- Lors de la fabrication ou de l'achat d'une cheminée finie, vous devez faire attention au fait qu'elle est réalisée avec un nombre minimum de coudes. Cela facilitera le passage des produits de combustion.
- Une chaudière fonctionnant par pyrolyse doit être installée sur un socle solide. Il est nécessaire d'installer une fondation simple en dessous, qui n'a pas besoin d'être enterrée. Il suffit de couler une surface plane de béton.

