Chaudière à bois DIY
Malgré le fait que notre pays mette en œuvre un programme de gazéification massive, les appareils de chauffage au bois n'ont pas perdu de leur pertinence. Aujourd’hui encore, même dans les maisons de campagne luxueuses, on trouve des chaudières à bois.
Le contenu de l'article
Caractéristiques de la fabrication de chaudières à bois à combustion longue
Les équipements de chaudière fonctionnant au bois sont un moyen assez populaire de fournir un chauffage autonome aux bâtiments et aux structures de divers types. Il est tout à fait possible de fabriquer soi-même de tels appareils, Cela nécessitera des connaissances en soudage, des outils et un dessin.

Comment fabriquer de vos propres mains une chaudière à bois pour chauffer l'eau
La production indépendante d'une chaudière à bois pour le chauffage nécessitera que le maître effectue certaines mesures préparatoires. Vous devrez notamment dessiner un croquis du futur produit. Il peut imaginer l'étendue des travaux à venir et dresser une liste du matériel et des outils nécessaires.
IMPORTANT!
POUR LA FABRICATION DU CARTER DE LA CHAUDIÈRE, IL EST APPROPRIÉ D'UTILISER DE L'ACIER DE CONSTRUCTION D'UNE ÉPAISSEUR DE 3 À 5 MM.L'UTILISATION DE TÔLES D'ÉPAISSEUR INFÉRIEURE PEUT ENTRAÎNER UNE DÉFORMATION DE LA STRUCTURE SURVENANT SOUS L'INFLUENCE D'UNE TEMPÉRATURE ÉLEVÉE.
Avant de commencer le montage, à l'exception du croquis il faudra calculer la pente, sous lequel seront installées les conduites d'alimentation en liquide de refroidissement et en eau chaude. De plus, le propriétaire doit déterminer l'emplacement où la chaudière sera installée. Il doit répondre aux exigences de sécurité incendie. Il est notamment nécessaire d'installer des joints d'isolation thermique entre la chaudière et les murs d'un bâtiment en bois, et une tôle devra être posée au sol devant le foyer. Un vase d'expansion peut être installé dans la chaufferie ; une certaine distance doit être laissée entre la chaudière et les réservoirs.
Pour éliminer les déchets de combustion, il faut installer une cheminée.
En plus des emplacements d'installation de la chaudière et du vase d'expansion, le propriétaire doit déterminer un endroit pour stocker le carburant.
Ce dont vous avez besoin pour travailler
Pour fabriquer votre propre chaudière, vous aurez besoin du matériel suivant :
- tôle d'acier de 3 à 5 mm d'épaisseur;
- tubes d'acier;
- portes, grille, registre pré-achetés.
Pour la fabrication de chaudières complexes, il peut être nécessaire de disposer de certaines vannes d'arrêt - robinets, vannes, etc. Pour assurer le contrôle des paramètres de fonctionnement de la chaudière, l'installation de capteurs de pression et de température sera nécessaire. Pour assurer le mouvement du liquide de refroidissement, il faut prévoir l'utilisation d'une pompe de circulation.
L'outil dont vous aurez besoin :
- machine à souder et électrodes;
- une meuleuse d'angle, elle sera nécessaire pour couper les tôles et nettoyer les soudures ;
- règle, ruban à mesurer, coin serrurier.
Les travaux de montage du poêle doivent être effectués dans un endroit préparé. Autrement dit, rien ne devrait interférer avec le travail.
Guide pas à pas pour réaliser une chaudière à bois avec circuit d'eau
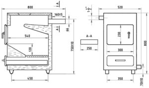
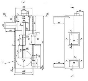
A titre d'exemple, considérons la fabrication d'une chaudière, illustrée sur la figure.

Figure 1. Croquis.
La production d'une chaudière de ce type peut être divisée en deux phases.
- Fabriquer un foyer.
- Fabrication du corps.
Tout d’abord, il faut terminer les préparatifs pour la fabrication de la chaudière. Pour ce faire, vous pouvez utiliser une meuleuse d'angle sur laquelle est installée une molette de coupe. Mais la coupe du métal ne peut pas fournir la même qualité de bords que la coupe du métal sur des cisailles mécaniques (guillotine). Par conséquent, il est logique de convenir avec l'organisation auprès de laquelle le métal sera acheté de la découpe de la tôle aux dimensions requises.
Lors de la fabrication d'une chaudière à partir d'une tôle d'une épaisseur supérieure à 4 mm, un chanfreinage sera nécessaire sur les bords. Leurs dimensions sont définies dans GOST, ces données se trouvent dans le manuel du technologue en génie mécanique. La présence d'un chanfrein assurera la qualité de la soudure.
Il est logique de souder avec une électrode d'un diamètre de 3 à 4 mm. L'intensité du courant est réglée sur le panneau de commande de la machine à souder. Elle devrait être comprise entre 180 et 200 A.
SUR UNE NOTE!
LORS DE L'EXÉCUTION DES TRAVAUX, VOUS DEVREZ INVITER UN ASSISTANT, SA TÂCHE COMPRENDRA LA TENUE DES TRAVAUX PENDANT LE SOUDAGE.
Le soudage des tôles s'effectue en deux étapes : d'abord, un « pointage » est effectué et après vérification, les tôles peuvent être soudées.
Après le soudage, il est nécessaire d'enlever les scories et de les inspecter pour vérifier la qualité du travail.. Il ne doit pas y avoir de bulles, de manque évident de pénétration, de contre-dépouilles le long des bords de la zone de couture ou d'autres défauts à la surface de la couture.La qualité des soudures est définie dans GOST 3242-79.
Dessins d'options pour réaliser une chaudière à bois
L'ingénierie n'a pas de frontières et il existe donc de nombreux modèles différents de chaudières à bois. Vous trouverez ci-dessous les modèles de chaudières les plus couramment utilisés dans les ménages.

Conseils importants pour fabriquer une chaudière à eau au bois de vos propres mains
Tout le monde ne peut pas fabriquer une chaudière à bois, mais si vous vous en lancez, soyez prudent et écoutez les conseils suivants :
- Si vous ne disposez pas de compétences suffisantes en soudage, confiez ces travaux à un professionnel.
- Suivez les précautions de sécurité lorsque vous travaillez avec du soudage et du métal.
- Avant de commencer le travail, vérifiez l'exactitude des dessins - une petite erreur peut gâcher le résultat final.
Dans l’ensemble, soyez prudent et les résultats en vaudront la peine.

