Quelle cheminée est la meilleure pour une chaudière à combustible solide ?
La cheminée fait partie intégrante d'un système de chauffage autonome. Une conception appropriée et une installation correcte d'un tuyau d'évacuation des produits de combustion aideront à éviter l'odeur désagréable de monoxyde de carbone lors de la combustion du bois.
Le contenu de l'article
- À quoi doit ressembler une cheminée pour une chaudière à combustible solide ?
- Est-il possible de fabriquer de vos propres mains une cheminée pour une chaudière à combustible solide ?
- Comment faire un dessin de cheminée
- Comment fabriquer soi-même une cheminée pour une chaudière à combustible solide : instructions étape par étape
À quoi doit ressembler une cheminée pour une chaudière à combustible solide ?
L'objectif principal du tuyau d'évacuation des fumées est d'éliminer les gaz résiduaires après la combustion du bois dans la chambre de combustion. La capacité d'évacuer les produits de combustion est caractérisée par le tirage naturel que crée la cheminée en raison de la raréfaction de l'air lorsque la hauteur passe du point d'admission des gaz combustibles au niveau de rejet dans l'atmosphère. La variation de pression atmosphérique entre le bas et le haut du tuyau est mesurée en Pascals. Cette caractéristique dépend de la hauteur et du diamètre du canal de sortie du gaz.

Pour un fonctionnement ininterrompu des équipements à combustible solide, les fabricants de chaudières indiquent la valeur du vide pour les modèles qu'ils vendent. En fonction de la puissance de l'unité de chauffage, les exigences relatives à la cheminée changent : plus la puissance est élevée, plus la valeur du vide est élevée. Pour éviter au consommateur des calculs complexes de la longueur et du diamètre du tuyau de cheminée, les fabricants de chaudières indiquent le diamètre et la hauteur recommandés du canal pour l'évacuation des produits de combustion.
ATTENTION! Lorsque vous fabriquez vous-même une chaudière, la taille de la cheminée est similaire à celle des analogues industriels en termes de puissance.
Les principales exigences pour un tuyau d'évacuation des fumées sont la correspondance de la longueur et de la section transversale du canal pour créer le tirage requis. La forme de la section affecte également la qualité de la traction, mais dans une moindre mesure. Le matériau du canal doit résister à des températures élevées et ne pas être sujet à la corrosion. Le condensat formé à l'intérieur du tuyau a des propriétés destructrices.
Est-il possible de fabriquer de vos propres mains une cheminée pour une chaudière à combustible solide ?
L'installation d'une chaîne simple ne nécessite pas de qualifications élevées. Il est important d'observer un assemblage correct et de surveiller l'étanchéité des connexions des éléments structurels de montage.
Une cheminée complexe, constituée de canaux horizontaux bordés de briques, conçus pour utiliser la chaleur des produits de combustion à des fins de chauffage, nécessitera l'intervention d'un poêle expérimenté. Une étude indépendante des caractéristiques de la pose de cheminées en brique vous permettra de faire le travail, mais prendra beaucoup de temps.
L'installation d'un conduit d'évacuation des fumées constitué de tuyaux métalliques ne prendra pas beaucoup de temps et permettra d'évacuer complètement les produits de combustion avec le bon choix de diamètre et de hauteur.Les fabricants d'équipements de chauffage proposent un large choix de produits métalliques pour l'élimination des produits de combustion. Ils ont des tailles différentes et une fixation pratique.
IMPORTANT! Lors de l'installation des raccordements, l'élément supérieur de la cheminée est inséré dans celui du bas afin que les condensats s'écoulent le long de la surface intérieure du canal !
De quel matériau doit être faite la cheminée ?
Les tuyaux d'évacuation des fumées modernes sont fabriqués à partir de :
- amiante;
- verre;
- céramique;
- briques;
- métal
Les cheminées en amiante sont utilisées depuis longtemps pour éliminer les produits de combustion. Au début du XXIe siècle, des chercheurs ont identifié les effets nocifs de ce matériau sur la santé humaine lorsqu'il est chauffé. Compte tenu de leur faible coût, les tuyaux en amiante sont encore très demandés. Ils sont reliés aux chaudières via des adaptateurs métalliques.
Les conduits d'évacuation des fumées en verre sont très chers. Les tuyaux en céramique sont difficiles à installer. Ces deux matériaux sont rarement utilisés pour l'évacuation des gaz d'échappement, mais en raison du fait que la surface intérieure est très lisse, certains souhaitent construire une telle cheminée.
Les cheminées en brique sont traditionnellement utilisées dans la construction de poêles. Pour relier la structure en brique à la chaudière, des transitions métalliques et des éléments de connexion sont utilisés.
La présence de condensats à l'intérieur du conduit de cheminée rend l'utilisation de tuyaux en acier inefficace. Ils s'usent rapidement. Un matériau courant pour les conduits d’évacuation des fumées est l’acier inoxydable résistant à la chaleur. Les systèmes fabriqués à partir de ce matériau sont équipés de toutes sortes d'adaptateurs, de tours et de fixations, qui vous permettent d'installer rapidement et efficacement des tuyaux pour l'évacuation des produits de combustion.La surface interne lisse offre une bonne traction et rend le système facile à entretenir. Les propriétés de résistance à la chaleur du matériau lui permettent de résister à des températures élevées lors de l'utilisation du charbon.
Quelles connaissances sur une cheminée sont nécessaires pour en fabriquer une de vos propres mains ?
Pour effectuer de manière indépendante des travaux d'assemblage d'un conduit d'évacuation des fumées, il est nécessaire de comprendre qu'un flux d'air doit passer par le trou de travail, assurant le mode de combustion requis de l'équipement à combustible solide. Ce débit se mesure en mètres cubes. m/heure. La nécessité de modifier la quantité de mouvement d'air chaud est déterminée par les caractéristiques thermiques de la chaudière.

Plus la puissance de la chaudière est grande, plus le débit d'air qui doit passer par la cheminée est important. Autrement dit, le tirage est directement proportionnel à la puissance de l’équipement de chauffage. Habituellement, pour déterminer le diamètre et la hauteur du conduit d'évacuation des fumées, ils utilisent des tableaux spéciaux ou sélectionnent des paramètres similaires recommandés par les fabricants de chaudières.
RÉFÉRENCE! Les SNiP prévoient le calcul du tirage des équipements de chauffage pour l'évacuation des gaz d'échappement. Le calcul est dû à un grand nombre de données initiales de la chaudière, des matériaux de la cheminée et se résume à déterminer le vide exprimé en Pascals. Ce calcul ne fournit pas une définition claire de la taille du tuyau.
De quels outils aurez-vous besoin ?
Pour effectuer les travaux d'installation d'un conduit de cheminée, vous aurez besoin de :
- instruments de mesure;
- outils pour le travail des métaux;
- perceuse, marteau perforateur;
- Bulgare;
- corde;
- barres de bois.
IMPORTANT! Lors de l'installation d'un conduit de désenfumage, les éléments métalliques sont reliés à l'aide d'entretoises en bois. Il est interdit de frapper l'extrémité des tuyaux avec un marteau.
Comment faire un dessin de cheminée
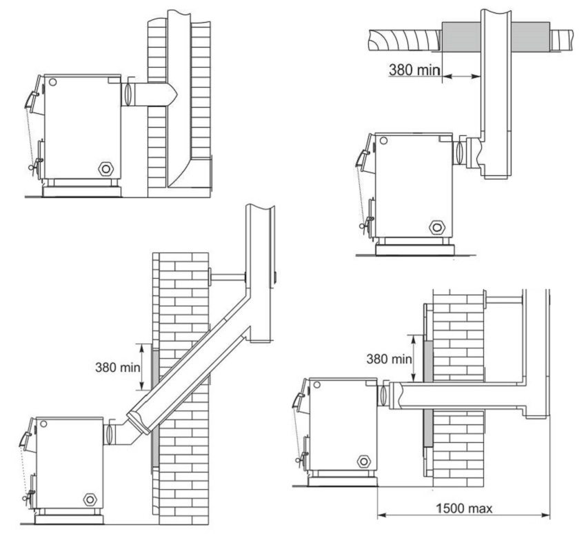
Avant d'installer le conduit de désenfumage, il est nécessaire de réaliser un croquis et de s'assurer que la conception prévue est correctement sélectionnée. Le dessin montre une vue latérale de la maison et décrit le tuyau d'évacuation des gaz.

Lorsque la distance du faîte au tuyau est inférieure à 1,5 m, la cheminée est conçue à 50 cm au-dessus de la ligne supérieure du toit. Lorsque la position du conduit d'évacuation des fumées passe à 3 m, la partie supérieure est installée au niveau de la crête. Et à une plus grande distance, tracez une ligne tangente le long du point supérieur du tuyau et du toit. La pente de la ligne droite tracée ne doit pas s'écarter de l'horizon de plus de 10 degrés.
En plus d'un croquis de la maison avec une représentation d'un tuyau d'évacuation des gaz d'échappement, un dessin du passage du canal à travers le toit, le plafond des sols et le raccordement à l'équipement de chauffage est réalisé. Il peut s'agir du même dessin ou d'un dessin différent. Le raccordement de la chaudière à la cheminée se fait à angle droit ou obtus dans le sens de déplacement des produits de combustion.
ATTENTION! Le raccordement des tuyaux selon un angle aigu perturbera le tirage naturel et ne permettra pas au système d'évacuation des fumées de fonctionner normalement. Il y aura toujours une odeur de brûlé dans la maison, et pour s'en débarrasser, il faudra refaire le raccordement.
Le dessin indique la hauteur et le diamètre du canal de gaz d'échappement.
Comment calculer la hauteur de la cheminée pour une chaudière à combustible solide
Lors du calcul de la valeur de la hauteur du tuyau (Wtr), une formule spéciale est utilisée qui prend en compte :

- puissance de la chaudière, disons Mk = 30 kW ;
- tirage statique requis, St = 23 Pa (pour les chaudières domestiques d'une puissance de 25-30 kW) ;
- température des gaz d'échappement, Тg=530 K (pour le bois de chauffage) ;
- température ambiante, To=290 K (pour les latitudes moyennes).
La formule utilise les coefficients calculés 3459 et 1,1, qui sont des valeurs constantes.
Vtr = St*Tg*To/3459*(Tg-1.1*To) = 23*530*290/3459*(530-1.1*290) = 3535100/3459*211 = 3535100/729849 = 4, 84 m
La valeur obtenue est calculée pour les valeurs acceptées de poussée statique et de température de combustion. Tous les calculs sont effectués en Kelvin.
ATTENTION! Pour calculer les paramètres des tuyaux d'une chaudière à charbon, la température des produits de combustion est supposée être supérieure de 200 à 400 degrés (selon le type de combustible solide).
Diamètre de cheminée pour chaudière à combustible solide
Le diamètre des canaux d'évacuation des gaz d'échappement n'est pas inférieur à la taille du tuyau de sortie de l'équipement de chauffage. Il est impossible de réduire ou de rétrécir la section des tuyaux - cela altère le tirage et interfère avec le processus de combustion. Une augmentation de la taille du passage est acceptable, mais avec un petit saut.
ATTENTION! Lorsque vous fabriquez vous-même une chaudière, le diamètre du tuyau est de la même taille que celui des analogues des fabricants industriels d'équipements de chauffage. Le modèle d'unités produites en série est sélectionné en fonction de la puissance ou de la taille similaire du foyer et du volume de la chemise d'eau.
Comment fabriquer soi-même une cheminée pour une chaudière à combustible solide : instructions étape par étape
Avoir les compétences nécessaires pour travailler avec la plomberie et les outils électriques vous permettra d'installer facilement des tuyaux de cheminée de vos propres mains. Considérons la possibilité d'auto-assembler un canal métallique pour évacuer les produits de combustion.
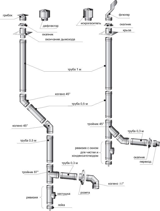
- Tout d'abord, préparez tous les éléments constitutifs : coudes, transitions, extensions et fixations.
- Découpez un trou dans le toit et le plafond à l'aide d'une meuleuse et installez une pince de fixation au bas de la couverture et sous le plafond.
- Le tuyau de cheminée supérieur est fixé à l'emplacement prévu, après y avoir préalablement installé un parasol de protection et un déflecteur d'eau.
- Assemblez le nombre requis de tuyaux d'un mètre de long (longueur standard pour les éléments individuels) de la surface du toit au plafond. Relié à l'élément supérieur et fixé sous le plafond. Lors de l'installation près d'un mur, chaque section d'un mètre de la cheminée est fixée avec un collier.
- Après cela, les tuyaux sont assemblés avec un té conçu pour se connecter à la chaudière ou à la rallonge. Ensuite, la partie supérieure est insérée dans la douille de raccordement du conduit de cheminée sous le plafond et la douille horizontale de la chaudière est reliée à la structure assemblée. À l'aide d'entretoises en bois, abattez fermement les joints du système de désenfumage. Après s'être assuré que les éléments individuels sont fermement fixés, la structure assemblée est sécurisée avec des pinces.
ATTENTION! Avant de percer des trous pour installer les colliers, il est nécessaire de pré-assembler les éléments de cheminée pour garantir un perçage précis des trous.
La distance entre les sections horizontales ne doit pas dépasser 1 mètre. Si la longueur des sections de tuyaux connectées est plus longue, des éléments d'installation inclinés sont utilisés.

- Les cavités autour des canalisations, aux intersections avec la toiture et le plafond, sont remplies de mousse pour assurer l'étanchéité.
IMPORTANT! Seule de la mousse de polyuréthane résistante à la chaleur est utilisée. La température des gaz à l'intérieur des canaux atteint 400 degrés.
- Une fois les travaux terminés, vérifiez l’étanchéité du plafond, et notamment de la toiture. L'eau ne doit pas s'écouler sous le déflecteur d'eau ni s'infiltrer à travers les pores du trou de montage.
La cheminée est prête à l'emploi.Nous pouvons affirmer avec certitude que l'utilisation d'acier inoxydable résistant à la chaleur est la solution optimale pour la construction d'un système de cheminée. Le respect de toutes les exigences, y compris celles ignifuges, permettra à la structure assemblée d'être utilisée pendant une longue période.
