Comment choisir une chaudière à gaz
Lors du choix d'un moyen de chauffage approprié, de nombreux propriétaires d'appartements et de maisons privées préfèrent les chaudières à gaz. Ces appareils sont assez simples et faciles à utiliser, ont un rendement élevé et une longue durée de fonctionnement.
Le contenu de l'article
À quels paramètres faut-il faire attention lors du choix d'une chaudière à gaz ?
Pour garantir le plein fonctionnement d'un tel appareil après son achat et sa connexion, il est nécessaire de prêter attention à un certain nombre de nuances importantes lors du processus de sélection. Il existe un certain nombre de critères spécifiques sur la base desquels il est recommandé d'évaluer un modèle de chaudière à gaz. Presque toutes les caractéristiques de cet appareil sont étroitement liées et interdépendantes. C’est pourquoi ils doivent être évalués dans leur ensemble :
- La caractéristique principale est la puissance thermique totale de l'appareil (c'est avec son aide que la pièce est chauffée). Il doit être déterminé en fonction des objectifs d'un système de chauffage particulier.
- L'emplacement d'installation dépend directement de la puissance de l'appareil acheté de ce type.

- Le type d'appareil, selon sa disposition, peut être au sol ou mural. Il est choisi en tenant compte des caractéristiques de l'emplacement choisi pour son installation ultérieure.
- Le nombre de circuits est choisi en tenant compte des conditions d'utilisation ultérieure de l'appareil (exclusivement pour les besoins de chauffage ou également pour l'approvisionnement ininterrompu en eau chaude). Lors du choix d'un modèle double circuit, il est nécessaire de prendre en compte le type d'appareil en fonction de la conception des échangeurs de chaleur.
- Type de chambre de combustion. Peut être ouvert ou fermé. Compte tenu de cette caractéristique, un système d'évacuation des produits de combustion est organisé : par un système d'évacuation forcée ou par une cheminée ordinaire à tirage naturel. Les appareils avec chambre de combustion fermée sont plus chers, mais ils peuvent être installés dans n'importe quelle pièce, et les modèles avec chambre de combustion ouverte ne peuvent être installés que dans des locaux non résidentiels spécialement équipés.
- Le niveau de dépendance de l'appareil à l'approvisionnement énergétique. Il est recommandé de prendre en compte cette caractéristique si des pannes de courant surviennent souvent dans une zone peuplée.
- La présence d'éléments supplémentaires nécessaires à l'organisation du plein fonctionnement du système de chauffage (systèmes de contrôle et de sécurité intégrés lors de l'utilisation de l'appareil).
- Fabricant et coût d'une chaudière à gaz dont la taille peut varier considérablement en fonction des caractéristiques ci-dessus.
Comment décider du pouvoir
Il est impossible de sélectionner un modèle approprié d'un appareil de ce type si l'on ne sait pas quelle puissance doit avoir l'installation de chauffage. L'indicateur de puissance nominale est toujours indiqué dans la documentation technique de l'appareil. Parfois, vous pouvez même trouver des recommandations concernant le volume des pièces que l'appareil est conçu pour chauffer.Cependant, ces données sont très conditionnelles, puisqu'elles ne prennent pas en compte les caractéristiques d'un local d'habitation particulier et les conditions réelles d'utilisation ultérieure de la chaudière à gaz.
L'indicateur de puissance d'un tel appareil peut varier de 7 kW à 100 kW. Afin de déterminer la valeur de puissance optimale d'un tel appareil, il est nécessaire de prendre en compte la taille de l'espace de vie et les caractéristiques de son isolation thermique.
ATTENTION! Si la maison n’est pas neuve et que son isolation thermique laisse à désirer, il faut choisir un modèle avec puissance « en réserve ». Si la maison ou l'appartement a des murs bien isolés, vous devez sélectionner un modèle sans tenir compte de la puissance supplémentaire.
Lors du calcul de la puissance nominale appropriée d'une chaudière à gaz, il est nécessaire de prendre en compte :
- superficie et cylindrée des locaux d'habitation ;
- caractéristiques des conditions climatiques locales ;
- qualité de l'isolation des murs extérieurs ;
- nombre de fenêtres, leur taille et type de fenêtres à double vitrage ;
- la présence de balcons et de portes donnant sur la rue ;
- caractéristiques du système de chauffage.

Il est recommandé de confier la réalisation des calculs de génie thermique à des spécialistes. Cela vous permettra d'obtenir le résultat le plus précis.
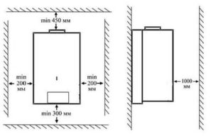
Comment choisir un emplacement d'installation de chaudière
Le lieu d'installation d'un tel appareil doit être choisi en tenant compte des normes en vigueur :
- La pièce sélectionnée doit avoir une superficie totale d'au moins 4 m², et la hauteur sous plafond doit être d'au moins 2,5 m.
- Les murs de la pièce ne doivent pas être constitués de matériaux inflammables. Sinon, une installation supplémentaire d'une couche de matériau de protection spécial sera nécessaire.

- Il est obligatoire d'avoir des fenêtres dans une telle pièce. Pour chaque 10 m² de pièce, il doit y avoir au moins 0,3 m² d'ouverture de fenêtre.
- La porte de la pièce ne doit pas être plus étroite que 0,8 m.
- La taille de la cheminée dépend directement des indicateurs de puissance de la chaudière à gaz. Les appareils les plus populaires sont ceux d'une puissance de 30 à 40 kW. La meilleure option pour eux serait des cheminées d'un diamètre dans le couloir de 130 à 170 mm.
- La partie extérieure de la cheminée doit s'élever d'au moins 50 cm au-dessus de la surface du toit.
- Le système de ventilation doit être installé en partie haute du local.
- La pièce dans laquelle ce type d'appareil doit être installé doit être entièrement ventilée.
Avant d'utiliser une chaudière à gaz, vous devez obtenir l'autorisation appropriée du service public.
Caractéristiques des chaudières au sol et murales
Il existe différents modèles d’appareils de ce genre. Selon le type d'installation, ces unités peuvent être fixées au mur ou au sol. Du point de vue de la décoration intérieure, les modèles muraux présentent un avantage absolu. Dans le même temps, les chaudières au sol ont une puissance plus élevée.
Caractéristiques des chaudières au sol
Ce sont des structures assez massives qui peuvent être installées à n’importe quel endroit choisi. Les modèles de chaudières au sol peuvent avoir un échangeur de chaleur en acier ou en fonte.
RÉFÉRENCE! L’avantage indéniable de la fonte est qu’elle n’est pas sujette à la corrosion (surtout venant de l’extérieur). Les inconvénients incluent tout d'abord la fragilité d'un tel matériau (à la fois sous contrainte mécanique et sous l'influence de changements brusques de température).
Les chaudières à gaz au sol avec échangeurs de chaleur en acier sont plus résistantes aux contraintes mécaniques et ont moins de poids. Cependant, dans le même temps, ces modèles sont largement sujets à la corrosion.
Les chaudières à gaz au sol sont divisées en deux types :
- avec brûleur atmosphérique;
- avec un brûleur gonflable.
Les chaudières à gaz au sol ont dans la plupart des cas une puissance supérieure à 30 kW et sont utilisées pour fournir de l'eau chaude et chauffer des pièces d'une superficie supérieure à 50 m².
Caractéristiques des chaudières murales
Étant donné que de tels appareils peuvent être placés au mur, ils n'occupent pas une partie de l'espace au sol, ce qui est très pratique, surtout dans les petites pièces. La conception de l'échangeur de chaleur des modèles muraux est plus simple, mais la puissance est inférieure et le niveau de fonctionnalité est pire.
Les principaux types de chaudières murales à gaz comprennent :
- Installations bithermiques. Ils sont constitués de deux tubes métalliques de diamètres différents dont le plus petit est inséré dans le plus grand. Le circuit externe assure le mouvement du liquide de refroidissement pour chauffer la pièce, et le circuit interne circule l'eau chaude utilisée pour les besoins techniques.
- Unités duothermiques. Ils se distinguent par la présence de deux systèmes d'échange thermique indépendants l'un de l'autre. Deux tubes en cuivre sont situés sur deux côtés différents du boîtier. Chacun d'eux est chauffé séparément. Ils fournissent leur liquide de refroidissement à divers systèmes de canalisations.
Les chaudières murales à gaz sont divisées en les types suivants :
- circuit unique - utilisé lors de l'installation de systèmes de chauffage autonomes ;
- double circuit - obligatoire si, en plus du chauffage, il est nécessaire de fournir de l'eau chaude pour les besoins techniques.
Lors du choix de chaudières murales à gaz pour chauffer un chalet, de nombreux experts conseillent de faire attention à la présence d'une fonction antigel. À des températures extrêmement basses, cette fonction permet d'éviter les situations d'urgence et la rupture des tuyaux de chauffage.
Quelle chaudière est préférable de choisir
Les modèles sur pied occupent une partie de la surface au sol de la pièce. Cela peut faire une différence significative si la maison est relativement petite. Les chaudières à gaz au sol sont plus adaptées aux grandes maisons (de 250 à 300 m²). Les modèles muraux compacts dotés de commandes simples et intuitives sont parfaits pour les petits chalets et les petites maisons de campagne.
Les plus polyvalentes sont considérées comme les chaudières à gaz à double circuit, capables de fournir non seulement un chauffage complet de la pièce, mais également un approvisionnement ininterrompu en eau chaude. Lors du choix d'un appareil à double circuit, il est recommandé de privilégier les modèles dotés de deux échangeurs de chaleur : primaire et secondaire.
Les modèles modernes de chaudières à gaz peuvent comporter de nombreuses options supplémentaires qui garantissent la commodité et la sécurité de ces appareils pendant leur fonctionnement. Les meilleures options ont un système de régulation automatique et un système de réglage en douceur. Certains appareils ont la possibilité de s'allumer et de s'éteindre à l'aide d'une minuterie.
Pour garantir la possibilité de régler la température optimale dans la pièce afin que la chaudière ne clique pas ensuite toutes les 3 minutes lors de l'allumage et de l'extinction, il est recommandé de privilégier un modèle avec modulation. Cela vous permettra d'augmenter ou de diminuer en douceur la puissance de l'appareil.

