Comment utiliser une chaudière à gaz
Pour les équipements de chauffage installés dans les maisons privées, presque tous les types de combustibles connus sont utilisés - bois, tourbe, charbon, électricité, gaz naturel. Dans notre pays, avec ses ressources, les équipements à gaz sont devenus l'un des plus populaires. Il se distingue par un prix assez bas et une disponibilité relative. Les conceptions des chaudières utilisées pour chauffer les maisons sont faciles à utiliser et sûres, mais sont bien entendu soumises à un certain nombre de règles.
Le contenu de l'article
Principe de fonctionnement de la chaudière
Les appareils de chauffage fonctionnant au gaz peuvent différer les uns des autres par leur conception et leurs caractéristiques techniques, ils utilisent tous le même principe : chauffer l'environnement de travail du système de chauffage en utilisant un combustible brûlant, dans notre cas du gaz naturel.
Le gaz est utilisé non seulement pour le chauffage des locaux, mais également pour chauffer l’eau. À cette fin, des colonnes d'eau ou des chaudières à double circuit sont utilisées. Les équipements utilisés de nos jours sont équipés de systèmes de sécurité très efficaces : ils maintiennent le processus de combustion du gaz sous contrôle. Mais néanmoins, il existe des règles obligatoires pour l'utilisation des équipements à gaz et leur respect peut devenir un gage de sécurité.
Avant de mettre l'équipement en service, l'utilisateur doit s'assurer :
- Il y a la quantité requise de fluide de travail dans le système de chauffage.
- Le fait que le brûleur et la soupape de sécurité soient en état de fonctionnement.
- Les instruments de mesure affichent des données correctes.
- La température de fonctionnement de la chaudière ne doit pas descendre en dessous de 65 degrés. Cela peut entraîner de la condensation.
Règles de placement des chaudières
La superficie de la pièce dans laquelle le chauffage à gaz sera installé doit être d'au moins 7,5 mètres carrés. m. La distance minimale entre le sol et le plafond ne doit pas être inférieure à 2,2 m. Une fenêtre doit être installée dans la pièce par laquelle pénètre l'air extérieur.
La porte de la pièce doit s'ouvrir vers la rue. Il est inacceptable d'utiliser des interrupteurs dans la chaufferie, ils doivent être installés à l'extérieur de celle-ci.
La pièce dans laquelle l'équipement de chaudière à gaz sera utilisé doit être équipée d'une ventilation d'alimentation et d'extraction. Sa productivité devrait être de 15 mètres cubes. m d'air par mètre cube. m de gaz consommé.
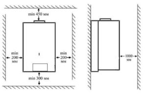
Lors de l'installation d'un appareil de chaudière, il est nécessaire de maintenir une certaine distance entre celui-ci et les autres objets. Ainsi, pour les objets fabriqués à partir de matériaux inflammables, elle doit être de 250 mm ou plus. La distance par rapport aux éléments constitués de matériaux ignifuges doit être de 50 mm.
Ces distances par rapport aux conduits de cheminée doivent être respectivement de 400 et 150 mm.Avant d'installer une chaudière à gaz, il est nécessaire de mettre de l'ordre dans la pièce, notamment le sol doit être plat et sans aucune pente.
De la cheminée aux parties combustibles - 40 cm, aux parties incombustibles - 15 cm. L'appareil est monté sur un plan parfaitement plat, sans pentes.
Règles d'utilisation d'une chaudière à gaz
Voyons comment utiliser correctement une chaudière à gaz.
Instructions d'allumage
L'un des éléments de conception des chaudières à gaz qui les distinguent les unes des autres est le système d'allumage. Par conséquent, lors du démarrage de chaudières de différents types, certaines subtilités peuvent survenir. Avant de mettre l'appareil en service, vous devez étudier le mode d'emploi. La séquence d'allumage ressemble à ceci :
1. Inspection visuelle du système pour détecter les fuites. Pour ce faire, réglez le thermostat au maximum. Dans ce cas, une commutation automatique se produit.
2. Lors de cette opération, la chaudière doit être connectée au réseau électrique. Après avoir commencé à fonctionner, un léger bruit se fera entendre et après avoir rempli le système de refroidissement, l'allumage automatique du système fonctionnera et la chaudière reviendra aux modes de fonctionnement définis.
Comment éteindre correctement la chaudière
S'il n'est pas prévu d'utiliser la chaudière pendant une certaine période, il est alors logique de l'éteindre. Tout d'abord, fermez le robinet d'alimentation en gaz. L'automatisation de contrôle et les pompes installées doivent être hors tension. Bien entendu, il ne faut pas oublier de couper l'alimentation en liquide de refroidissement et en eau si elle est utilisée pour le chauffer. S'il est prévu que la température descende en dessous de zéro pendant les temps d'arrêt, l'eau devra alors être vidangée.
RÉFÉRENCE! Pour éteindre la chaudière, vous pouvez inviter des spécialistes d'un organisme de service.
Autodiagnostic
Le fonctionnement des équipements à gaz sera considérablement simplifié s'ils disposent d'un système d'autodiagnostic. La plupart des fabricants installent depuis un certain temps des systèmes similaires sur leurs produits. Les messages d'erreur sont affichés sur le moniteur intégré. Pour certains fabricants, l'erreur A7 indique un dysfonctionnement du capteur de température. L'autodiagnostic des équipements à gaz simplifie son fonctionnement. Le décodage des codes affichés sur le moniteur est généralement indiqué dans le manuel d'instructions.
Protection contre le gel
L'une des règles clés pour le fonctionnement en toute sécurité des équipements à gaz est de garantir la présence d'une température minimale de l'environnement de travail qui ne lui permettra pas de geler. Si l'eau versée dans le système de chauffage gèle, cela entraînera des conséquences irréparables, notamment la rupture du radiateur.
La plupart des modèles utilisés aujourd'hui nécessitent une surveillance constante de l'état du liquide de refroidissement. Ils offrent une protection contre le gel ; l'un des composants est une pompe de circulation, qui est activée pour assurer le mouvement forcé de l'eau (liquide de refroidissement) à travers le système. En règle générale, il s'allume automatiquement lorsque l'eau atteint une température de 10 degrés. Si, pour certaines raisons, la température baisse encore plus, en plus de la pompe, un chauffage d'appoint est allumé, chauffant l'eau à un niveau prédéterminé, par exemple 18 degrés.
RÉFÉRENCE! Pour éviter le gel des canalisations, un mélange d'eau et de glycol est versé dans le système de chauffage ; bien entendu, la possibilité d'utiliser une telle solution peut être indiquée dans le manuel d'utilisation.
Que faire si des problèmes surviennent
Même lors du bon fonctionnement de l'équipement de la chaudière, certains problèmes peuvent survenir. Les interruptions suivantes peuvent survenir dans certaines chaudières :
- surchauffe de la chaudière ;
- le capteur de température est en panne ;
- La chaudière est trop bruyante pendant le fonctionnement.
En règle générale, certaines pannes peuvent être causées par des violations des conditions de fonctionnement, des défauts de fabrication, une chute de pression dans le gazoduc, une chute de tension dans le réseau d'alimentation ou des erreurs commises lors de l'installation d'une chaudière à gaz.
Certains propriétaires d'appareils à gaz tentent de résoudre les problèmes eux-mêmes, mais il est préférable de faire appel à des spécialistes d'un organisme de service.
IMPORTANT! Si vous sentez une odeur de gaz, vous devez arrêter la chaudière et faire appel à un spécialiste.
Règles générales de sécurité
Les fabricants d'équipements de chauffage au gaz accordent une grande attention à sa sécurité, malgré cela, les équipements de cette classe peuvent être une source de danger. Les pompiers du ministère des Situations d'urgence ne se lassent pas de parler constamment de mesures de précaution. En particulier, il est inacceptable d'acheter des équipements de chaudière à gaz auprès d'entreprises qui ne disposent pas de l'autorisation appropriée. Le colis de livraison doit inclure un manuel ou un mode d’emploi.
L'installation de l'équipement et sa mise en service ne peuvent être effectuées que par des employés des organisations concernées. Ces équipements doivent faire l'objet d'un contrôle d'état technique. En règle générale, cela se fait une fois par an.
Dans la chaufferie, il est inacceptable de stocker des éléments qui ne sont pas liés au fonctionnement ou à l'entretien des équipements installés. Et pourtant, la limite supérieure de chauffage du liquide de refroidissement ne doit pas dépasser 90 degrés.

