Dimensions du sèche-serviettes
Un attribut commun de la salle de bain est un sèche-serviettes. Le choix correct de la taille et du raccordement aux communications permettra à cet appareil de plomberie de remplir non seulement son objectif, mais également de créer le microclimat souhaité à l'intérieur. Un large choix de modèles proposés par les fabricants vous aidera à décorer votre salle de bain dans le style souhaité et à souligner l'orientation de l'intérieur.
Le contenu de l'article
Quelles sont les tailles de sèche-serviettes ?
Tout d’abord, soulignons les différences entre les appareils de plomberie en fonction de leur principe de fonctionnement. Il existe trois types de structures :
- électrique;
- eau;
- combiné.
L'aménagement des logements des immeubles d'habitation consiste à installer un sèche-serviettes en inox dans la salle de bain et à le raccorder à un système d'alimentation en eau chaude ou de chauffage (dans les maisons anciennes). Par conséquent, les appareils de plomberie à base d’eau sont très populaires. La simplicité de conception et de connexion les rend populaires. La particularité du travail est que la surface n'est chauffée que lorsque l'eau chaude (chauffage) est allumée.
Les sèche-serviettes électriques sont allumés dans le mode requis, ce qui vous permet d'être indépendant du fonctionnement de l'alimentation en eau. La complexité de la conception rend l’équipement coûteux, ce qui contribue à réduire la demande.
RÉFÉRENCE! Contrairement à ceux à eau, les appareils électriques sont installés à l’endroit souhaité par l’utilisateur. Pour se connecter, une prise électrique domestique suffit. Le câblage électrique est installé selon une méthode étanche.
Un appareil de chauffage de type combiné est installé si le consommateur souhaite utiliser deux types de chauffage pour une plus grande efficacité de fonctionnement.
dimensions
Depuis l'époque soviétique, un prototype de sèche-serviettes en forme de serpentin de même taille a été développé. Les progrès ne s'arrêtent pas et, aujourd'hui, les fabricants d'équipements sanitaires proposent un large choix d'équipements pour sécher les serviettes, qui diffèrent par leur forme et leur taille. En externe, les appareils sont :
- En forme de M (bobines conventionnelles);
- En forme de U ;
- échelles (avec ou sans étagère);
- en forme de S ;
- d'autres conceptions.
Ces structures ont des dimensions hors tout différentes, tant en hauteur qu'en largeur. Les fabricants de plomberie essaient de maintenir la hauteur standard des serpentins, qui est utilisée pour le raccordement habituel à la colonne montante d'eau chaude, tandis que la longueur et le tissage interne des tuyaux sont réalisés de différentes manières. D'autres configurations de sèche-serviettes n'ont aucune restriction sur les dimensions, et si le consommateur le souhaite, des conceptions personnalisées sont réalisées selon les dimensions spécifiées.
Le plus petit appareil de plomberie pour sécher les serviettes a des dimensions de 400x500 mm. Une telle unité sera pratique pour une utilisation dans une petite salle de bain ou lorsqu'elle est installée comme sèche-serviettes supplémentaire.
La caractéristique des appareils qui ressemblent à une lettre est l’allongement de la structure. Par exemple,
- En forme de M : hauteur – 55 cm, longueur 50–120 cm ;
- En forme de U, d'une hauteur de 30 cm, ont une longueur de 50 à 90 cm.
Pour les appareils de plomberie en forme d'échelle, le plus souvent, au contraire, la hauteur est supérieure à la longueur. Par exemple, avec une largeur de structure de 50 cm, la dimension verticale varie de 60 cm à 130 cm. En même temps, la largeur peut également changer.
Lorsqu'il s'agit de dimensions standards, cela signifie que le demandeur d'un appareil de plomberie parle de la hauteur acceptée pour le raccordement à une colonne montante d'alimentation en eau chaude. Il est également possible de normaliser officieusement les dimensions arrondies de toute structure. Disons 60x80 cm, 50x90 cm ou 60x120 cm, etc.
RÉFÉRENCE! Les commerciaux en plomberie font parfois aussi référence à la taille des canalisations des équipements qu’ils proposent. Cet indicateur affecte les caractéristiques thermiques de l'équipement.
Connexion
Selon le type d'installation au réseau électrique requis, le raccordement d'un appareil de plomberie peut avoir les types suivants :
- vertical (droit);

- bas (horizontal);
- diagonale.
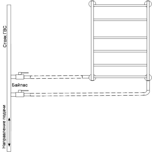
La méthode de connexion diagonale est considérée comme efficace en termes de transfert de chaleur. Mais son utilisation n’est pas toujours pratique et nécessite des particularités de conception pour l’approvisionnement en eau. Les deux méthodes restantes vous permettent de monter clairement l'unité sur les réseaux publics requis et de l'utiliser confortablement.
Le diamètre de raccordement des sèche-serviettes est fileté et est calculé en pouces. La plupart des appareils fabriqués sont fabriqués avec un filetage interne de 1/2". Compte tenu du grand nombre de produits fabriqués et d'entreprises de fabrication, tout le monde ne réalise pas exactement cette conception de raccordement aux canalisations du réseau. La taille peut être de 3/4" ou 1", et le filetage est à la fois externe et interne.
IMPORTANT! Les appareils modernes pour les connexions inférieures et diagonales sont équipés d'un robinet Mayevsky.Lors de l'installation, il doit être installé et utilisé lors du remplissage du système ! Si l'équipement est raccordé par le bas, il sera impossible de ventiler l'appareil sans ce robinet !
L'achat d'un appareil pour sécher les serviettes est conditionné par son installation ultérieure à l'endroit souhaité. En fonction de la distance entre les tuyaux de raccordement, sélectionnez l'option souhaitée. Lors de réparations dans un appartement ou une maison, il est conseillé d'acheter du matériel avant de poser les lignes électriques. Dans ce cas, l'alimentation en canalisations se fait en fonction de la taille de l'appareil de plomberie.
Comment choisir la bonne taille de sèche-serviettes
La spécificité du choix de la taille du matériel de séchage des serviettes réside dans la détermination de la puissance thermique de l'appareil, qui dépend directement des dimensions. Plus la taille et le nombre de tuyaux entrelacés de la structure sont grands, meilleure est la capacité de chauffer la pièce dans laquelle l'installation est requise.
Zone de chauffage
En vous plongeant dans les calculs thermiques de l'efficacité du chauffage d'une salle de bain à l'aide d'un sèche-serviettes, vous tombez sur des indicateurs auxquels personne ne prête jamais attention. Par exemple:
- nombre de tissages ou de pulls ;
- matériau de construction;
- diamètre des tuyaux principaux et auxiliaires ;
- température du liquide de refroidissement (eau chaude) ;
- mode d'alimentation en liquide de refroidissement (fréquence d'utilisation de l'ECS) ;
- zone de l'appareil de plomberie.
Il faudra beaucoup de temps pour étudier et comprendre tous les composants qui affectent le transfert de chaleur des équipements de séchage des serviettes. S'appuyant sur des calculs approximatifs effectués par des spécialistes expérimentés, ils prennent la puissance thermique des bobines, d'une taille globale de 500x1000 mm, égale à :
- 0,5 kW, lorsqu'il est connecté à un système de chauffage ;
- 0,2 kW – pour l'alimentation en eau chaude.
Sur la base des règles existantes de sélection des équipements de chauffage (1 kW pour 10 m²), il est clair qu'un tel appareil de plomberie chauffera une salle de bain jusqu'à 5 m². m, lorsqu'il est connecté au chauffage. Le raccordement à un réseau d'eau chaude vous permettra de chauffer une pièce jusqu'à 2 mètres carrés. M. La plupart des salles de bains privées des immeubles d'habitation disposent de cette zone. Les chiffres présentés vous permettent de comprendre la différence de puissance thermique pour différentes méthodes de connexion aux communications et de déterminer la taille requise du sèche-serviettes.
IMPORTANT! Le raccordement au système de chauffage permet de chauffer la pièce et le linge uniquement en hiver.
Lors du choix d'une taille, tenez compte de la longueur et de la hauteur de l'espace mural sur lequel l'appareil de plomberie sera installé. Les souhaits du consommateur concernant la facilité d'utilisation de l'équipement sont également importants. La partie supérieure est accessible sans trop d'effort et les dimensions latérales doivent être éloignées de 10 à 20 cm des murs, des cadres de porte ou des meubles pour faciliter l'utilisation.
La puissance thermique, prise comme calculée, est celle d'un appareil classique en forme de M. Si le serpentin est complété par des tuyaux auxiliaires ou si l'échelle structurelle comporte un grand nombre de cloisons fréquentes, le transfert de chaleur de l'appareil sera environ 1,5 fois supérieur à celui calculé.
Lors du choix d'un sèche-serviettes électrique, il faut vérifier ses caractéristiques thermiques auprès du vendeur. La taille des équipements électriques n’est pas fondamentale pour déterminer la puissance de chauffage. L'efficacité du chauffage d'une pièce avec des appareils électriques est généralement directement proportionnelle à la consommation actuelle. Si l'appareil consomme 500 W, il chauffera une pièce jusqu'à 5 mètres carrés. m.
Après avoir étudié les caractéristiques du choix des tailles et des connexions des sèche-serviettes, vous pouvez partir en toute sécurité à la recherche de l'équipement requis pour la salle de bain.

