Comment installer soi-même un sèche-serviettes électrique dans la salle de bain
Un sèche-serviettes est un élément très probablement présent dans chaque appartement soviétique. Aujourd'hui, ils ont radicalement changé et sont devenus encore plus pratiques. Vous pouvez y accrocher des objets mouillés qui doivent être séchés. Jusqu'à une certaine période, seuls les ouvrages d'eau raccordés au réseau d'eau général étaient utilisés. C'était très gênant, car la connexion rigide avec la colonne montante commune rendait difficile leur déplacement ou leur remplacement. Le marché moderne propose de nouveaux sèche-serviettes qui peuvent être installés dans n'importe quel endroit pratique.
Le contenu de l'article
Installation DIY d'un sèche-serviettes électrique
Tout d'abord, vous devez décider où vous allez installer cette structure. Avant d'installer vous-même un appareil électrique, vous devez soigneusement réfléchir à l'emplacement, car la facilité d'utilisation est importante et la conception globale de la pièce ne doit pas être perturbée. Le plus souvent, le sèche-serviettes est situé à proximité des lavabos. N'oubliez pas que l'appareil devra être connecté à une alimentation électrique.
IMPORTANT. Si la salle de bain n'est pas câblée et qu'aucune prise n'est installée, pour connecter le sèche-serviettes il faudra poser le câble dans le coffret électrique.
Le câble doit être choisi avec une double isolation et la section doit être d'au moins 2,5 mm2. Choisissez une prise avec protection contre les éclaboussures.
RÉFÉRENCE. Une prise appropriée aura un marquage au dos de deux chiffres, et le second d’entre eux doit être 4 ou 5.
L'installation au mur s'effectue avec trois ou quatre vis à l'aide de chevilles et de vis en plastique. Les fixations doivent être galvanisées ou en acier inoxydable. L'algorithme d'installation est le suivant :
- Placez la structure à l'emplacement de montage et marquez l'endroit où vous ferez le premier trou.
- Percer un trou. Installez la cheville et vissez la structure. Marquez l'emplacement du prochain trou.
- Saisissez également le sèche-serviettes dans le deuxième trou et faites les trous restants. Sécurisez l'appareil.
Faites attention à ne pas endommager l'appareil. Si possible, effectuez l'installation avec un film protecteur sur les tuyaux et retirez-le une fois la structure solidement fixée à sa place.
Raccordement d'un sèche-serviettes électrique
Comme déjà indiqué, auparavant, ces appareils faisaient partie des systèmes d'approvisionnement en eau et pratiquement rien ne pouvait interférer avec leur bon fonctionnement. La résistance hydraulique dans la conduite n'a pas changé même suite à l'allongement de la conduite.
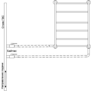
Schémas de connexion simples
Le schéma le plus primitif est celui que beaucoup ont vu dans leurs salles de bains. Lorsque le sèche-serviettes fait partie de la colonne montante d'arrivée d'eau chaude. C'est grâce à la simplicité et à la fiabilité de ce type de raccordement que les propriétaires d'appartements le choisissent souvent.
Il suffira de trouver un modèle moderne de l'appareil, où l'entraxe et le diamètre du tuyau requis sont respectés afin d'éviter le rétrécissement de la colonne montante.

Schémas de connexion recommandés
En plus du schéma de connexion standard, il en existe d'autres qui fonctionnent également bien. S'ils sont exécutés correctement, le sèche-serviettes fera face aux tâches qui lui sont assignées.
- Connexion latérale. Les experts conseillent de choisir ce schéma dans la plupart des cas. Il n'y a aucune dépendance à la pression de l'eau dans la colonne montante et à sa vitesse de déplacement. La distance par rapport à la contremarche n'a pas d'importance. Si l'appareil est correctement connecté, vous n'aurez pas besoin de purger l'air après avoir temporairement coupé l'eau.
- Connexion inférieure. Cette méthode de connexion est recherchée car elle permet de masquer les communications sans avoir à prendre de mesures drastiques. Il convient également de noter que de nombreux modèles sont créés spécifiquement pour cette connexion. Ce schéma est moins efficace qu'un schéma de connexion latérale ou diagonale.

Schémas de connexion notoirement non fonctionnels
Certains artisans, à la recherche d'un design extérieur attrayant ou pour économiser de l'espace, choisissent des schémas de connexion déraisonnables pour de tels appareils. Cela peut empêcher l'appareil de chauffer si tous les systèmes fonctionnent correctement.
Il est impossible qu'il y ait une bosse ou un arc dans la partie supérieure, cela entraînerait certainement une aération du système et la circulation à travers le sèche-serviettes s'arrêterait.- Il est inacceptable d'installer la sortie inférieure à un niveau inférieur au point le plus bas de la structure.
- Lors de l'organisation des résultats financiers, le système sera également inefficace.
Ce sont les principales erreurs que commettent certains artisans à domicile en raison de leur inexpérience.Pour éviter tout problème avec eux, il est recommandé de choisir les schémas de connexion des sèche-serviettes les plus courants et de ne rien proposer de nouveau.

